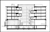
Mellem de to bygningsstokke er udspændt det fælles atrierum.
En enkeltvinduesparti bryder de tilknappede gavle.
En udvendig trappe sætter sig op mod de glatte facaders dominans.
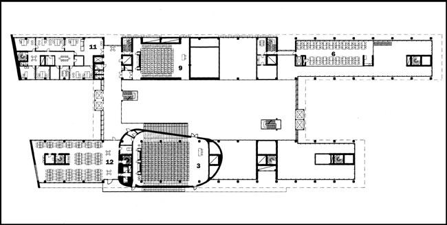
IT Universitetet er organiseret omkring et centralt atrium. Den digitale kunstudsmykning er udført af amerikaneren John Maeda.
Atriet tilføres livfuldhed en række udkragede mødebokse.
Boksene kan bruges som møderum eller til selvstudier.
Alle forsknings- og undervisningsområder er fordelt på de øverste etager.
Beskrivelse:
Mellem ITU’s to hovedbygninger er der en imponerende indre gård, et atrium.
De fem etager er åbne ud mod atriummet, og fra balkonerne kan man overskue aktiviteter andre steder i huset. Studerende, der hilser og vinker på tværs af den store bygning, er derfor ikke noget særsyn. En række lokaler til møder og gruppearbejde er forlænget ud i atriummet, hvor de hænger som en lang række transparente ‘skuffer’, der er trukket ud i forskellig længde.
På balkonerne mellem skufferne er der indrettet studiepladser, som sørger for, at der altid er aktivitet, når man kigger op fra den store gård.
Kilde: DAC
