Udvendigt er skolen beklædt med tynde aluminiumsplader.
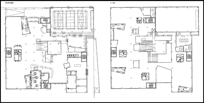
Bygningen er 60 meter på hver led og 3 etager høj.
Skolen er beregnet til 750 elever fra børnehaveklasse til 10. klasse samt fritidsordning.
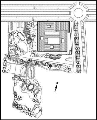
Legepladsen består bl.a. af et bemalet pukkellandskab
Det store centrale trappeområde, også kaldet Colosseum, der befordrer interaktion mellem alle skolens miljøer.
Skolen er disponeret med stor rummelighed - godt 9 m2 pr. elev. De brede, høje trin er også beregnet til at sidde på - som i et amfiteater.
Bygningen er ca. 60 m. lang på hver led og tre etager høj.
Beskrivelse:
Hellerup Skole er opført på de tidligere industriarealer i Tuborg Syd. Skolen er det største enkeltprojekt i en omfattende udbygning og modernisering af skolevæsenet i Gentofte.
Straks man træder ind på Hellerup Skole oplever man den helt særlige atmosfære. Umiddelbart inden for står masser af fodtøj, for både elever og lærere skifter til indesko, når de møder ind. Det betyder, at eleverne kan boltre sig på gulvene, både når de leger, og når de lærer. Der er skabt et modelleret landskab med trapper, plateauer, balkoner og broer, hvor især trappeformen er brugt mange steder i skolen og udgør den røde tråd mellem skolens centrale funktioner.
Som et centralt element åbner trappeområdet sig ud mod de forskellige dele af skolen, hvorved det bakker op om skolens stærke interne netværk. Ved trappen foregår et væld af forskellige aktiviteter; færdsel, ophold, undervisning, gruppearbejde, fremlæggelse og filmforevisning for større forsamlinger, og når frokostpausen melder sig, spiser mange elever deres mad her.
Skolens usædvanlige struktur, hvor skillevæggen og klasselokalet i princippet er erstattet af mobiler, skærmvægge og zoning, er et levende laboratorium for læring, hvor undervisningsform og læringsprocesser konstant er i bevægelse. Den dynamiske udformning giver konkret og daglig mulighed for at udfordre gængse forestillinger og afprøve nye muligheder.
Kilde: Arkitema
