Hejmdal er center for kræftrådgivningen i Region Midtjylland - herunder Århus, hvor alle kan søge vejledning i de nye lyse og legende omgivelser. Kun ydermurene står tilbage fra det oprindelige hus. Det røde, nybyggede tårn rummer bygningens elevator og glasmellembygningen trappen.
Bygningen var oprindelig portnerbolig for det tidligere Århus Kommunehospital. Frank Gehrys ændringerne har været så omfattende, at det ikke kan kaldes en ombygning eller restaurering - men snarere en transformation, der har resulteret i et helt nyt bygningsværk, som er mere særpræget end harmonisk. Det er Cubo Arkitekter, der har projekteret og varetaget projektledelsen.
Kælderetagen giver udgang til en stor have som er udformet som rampe op mod Kommunehospitalet, hvorved der samtidigt åbnes for lys til bygningens nederste etage. Bemærk den skrå skorsten!
Huset er Frank Gehrys fjerde rådgivningcenter for kræftramte mennesker, og er inspireret af det tredie i rækken, som er beliggende i Dundee i Skotland. Dette var afgørende for valget af arkitekt. Navnet Hjemdal stammer fra nordisk mytologi og betyder: Den klart lysende. Hjemdal er gudernes vagtmand og Odins søn.
Portnerboligen, som blev opført i 1908, markerer afslutningen af området omkring Kommunehospitalet, og er beliggende ved indkørslen til hospitalsgaden: Peter Sabroes Gade
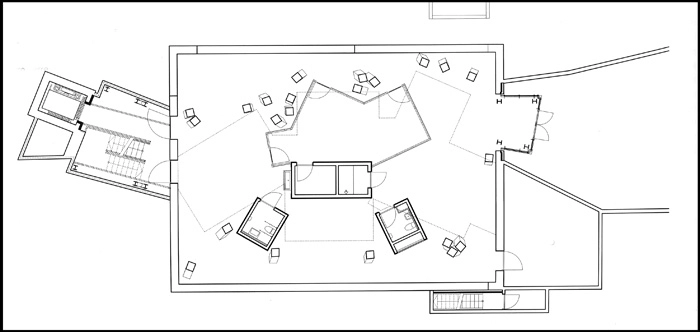
Mellemetagen er den mest offentlige og rummer foruden mange siddemuligheder også et køkken og en stor pejs.
Hejmdal er et relativt lille projekt med blot 600 m2 fordelt på tre niveauer, men virker alligevel særdeles rummelig og med stor variation af opholdsstæder.
1. etage - eller det øverste niveau, som er forbeholdt rådgivning - set fra trappetårnet.
Der er åbent op igennem alle etagerne og lyset strømmer ned langs de rustikke mure, der står i blank tegl.
De længste stolper er 14 m. lange og vejer 1,3 tons pr. stk.
Et stort glastag ophængt i en stålkonstruktion som dækker hele det oprindelige hus. De kraftige bjælker er kun en markering af tagfladen.
På 1. etager er der også mulighed for at trække sig tilbage til et samtalerum, hvor dørene kan lukkes.
Et krav fra arkitekten var at bjælkekonstruktionen skulle have synlige stålbeslag, som har meget store bolte for at holde sammen på konstruktionen. Træstolperne, der måler 45 x 45 cm. er lavet af douglas fyr fra Canada
Tagspærene er ophæng i stålbeslag og bærer ikke taget - men kun sig selv!
Den nederste etage rummer foruden administration et gymnastiklokale og et værksted for billedkunst.
Det er: Fonden til støtte for Kræftens Bekæmpelses Patienstøttearbejde, der der har bygget og ejer huset. Byggegrunden har kostet 6,9 mio. og byggeriet 35 mio.
Se på Google Maps
