Hedorfs Kollegiet er meget forskellig fra andet byggeri på Frederiksberg, hvor bearbejdningen af dagslyset tilfører nye kvaliteter og skaber en oplevelsesrig facade.
Bygningens små karnapper og franske altandøre giver tilsammen et usædvanligt mønster, hvor hvert facadeelement griber ind i det næste som puslespilsbrikker.
Facadeelementerne giver et fint balanceret spil mellem vandrette, lodrette og skrå linjer. Facaden kan næsten aflæses som et rivejern, men bliver ved med at give nye oplevelser, jo længere man kigger. Bygningen er opført med en bærende betonfacade i sandwichelementer.
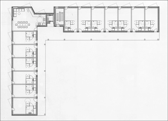
Hver dør og karnap afspejler en bolig som igen afspejler facadeelementets størrelse. Karnapperne er med til at skabe mest muligt volumen i det de ikke tæller med i værelsernes 25 m2.
Den nederste del af bygningen er udført i mørkt indfarvede sandwichelementer som sokkel, mens de øvrige elementer er lyst indfarvede.
Adgangen til værelserne sker på bagsiden af huset via terræn og dybe altangange.
Fordelt på fire etager rummer Kollegiet 52 etværelseslejligheder med eget bad og har et fælleskøkken, der fungerer som samlingssted for de studerende.
Beskrivelse:
"Byggeri lavet i sandwich beton elementer har ry for at være kedelig arkitektur. Kassebyggeri uden fantasi. Men Hedorf Kollegium på Frederiksberg viser, at der er flere muligheder med beton, end man umiddelbart skulle tro.
Ekspressiv og dynamisk facade
Inspireret af karnapperne på de traditionelle Frederiksberg lejligheder har KHR designet en geometrisk formet karnap, som skaber en ekspressiv og dynamisk facade. Karnapperne er placeret over gulv, så de giver luft i kollegieværelserne og skaber en anderledes rumlighed."
"Hedorf Kollegium ligger ved Flintholm Station tæt på CBS og Niels Brock. Kollegiet rummer 52 etværelseslejligheder med eget bad fordelt på 4 etager. Hver etage har et fælleskøkken, der fungerer som samlingssted for de studerende."
Fra KHR website
Emneord:
Kollegier |Se på Google Maps
