Spejldam 
Udenomsarealerne prydes af en mindre spejldam.
 Fotograf:  Andreas Trier Mørch 
 Download billede 
Sportsplads 
Den langstrakte skole er omgivet af grønne arealer.
 Fotograf:  Andreas Trier Mørch 
 Download billede 
Hall 
Også gymnasiets centrale fordelingsrum domineres af hvidt.
 Fotograf:  Andreas Trier Mørch 
 Download billede 
Kantinemure 
Murede brystninger opdeler kantineområdet.
 Fotograf:  Andreas Trier Mørch 
 Download billede 
Beskrivelse:
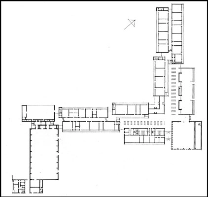
Skolen er komponeret af undervisningsblokke med ensidig taghældning hvor facaderne fremstår som hvidmalede teglsten.
De enkelte undervisningsblokkene er forbundet af forbindelsesgange der er udført som glaskonstruktioner.
Udendørs gangarealer er befæstiget med stenpigning mellem betonfliser.
