Den stærkt varierede tagflade adskiller bygningen fra omgivelserne.
For at tilpasse bygningen til det omkringliggende villakvarter er gavlen ekstruderet i mindre enheder.
Den helt inddækkede boldbane citerer hovedhusets knækkede tagflader. I baggrunden ses støjafskærmningen mod jernbanen.
Bygningens tagrende har fået en helt særlig afslutning mod gavlen, som betinges af tagets dobbeltskrå hældning.
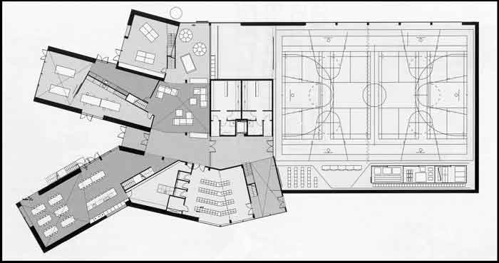
Bygningens store sportshal er placeret mod nord.
Den bagerste del af rummet kan adskilles og udnyttes til mindre arrengementer.
I en del af cafeteriaet har rummet dobbelt højde.
Rummet oplyses af to højtsiddende ovenlys.
Bygningen, som rummer 2600 m2, blev åbnet i januar 2008
Bygningens udformning citerer det omkringliggende helt udbyggede parcelhuskvarter.
Beskrivelse:
Mod syd danner bygningen en spids vinkel og har således kun 3 facader.
Trafikintensiteten på Gersonsvej er høj, og den trafikregulerede overgang har været central for disponeringen på grunden for at sikre en børnevenlig ankomst bedst muligt fra skolerne nord og syd for byggeriet. Der har tidligere ligget en 3-4 etager høj skole centralt på grunden, som er lang og smal, afgrænset af banen mod vest og Gersonsvej mod øst, med store fritliggende villaer mod nord og syd.
