Huset er konstrueret på en bundplade med fundamenter i beton og gulv med færdige belægninger af skifer og træ.
Ydervæggene er skalmur i tegl, pudset med bakkemørtel
Fem fritstående stålrammer bærer taget, som spænder over det samlede volumen med punktvise mellemunderstøtninger ved skillevæggene, hvilket tillader alle former for ruminddeling eller storrum.
Taget er et kassettetag, opbygget af tvær- og langsgående bjælker hvorpå er lagt isolerende tagkassettedækning.
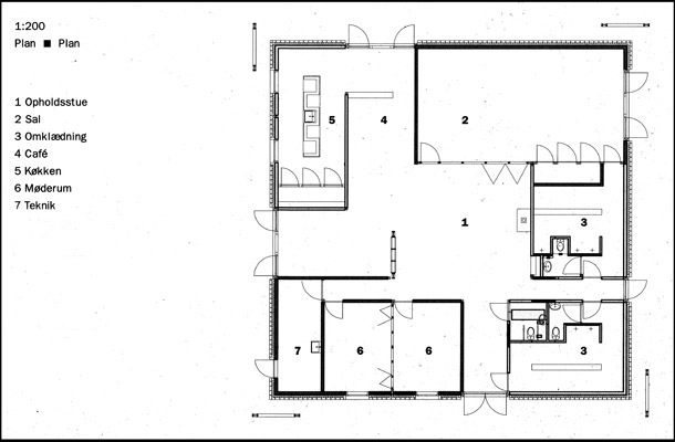
Huset er udformet som en stor dagligstue med den centrale rumlighed som samlings- og fordelingsrum til de enkelte funktioner, der er placeret i husets periferi.
Beskrivelse:
Fremtidens Foreningshus Undløse er opført som det første af de tre 'Fremtidens Foreningshuse' i Fondens konkurrence fra 2000. De to andre ligger i Randers og Holbæk.
For at gøre husene økonomisk realiserbare, tog konkurrencen udgangspunkt i at opføre foreningshuse, der benytter sig af standardiserede og masseproducerede elementer på en ny og kvalitativ måde.
