Det aflange center strækker sig tilbage til Handelshøjskolen på Solbjerg Plads.
Den øverste etage udgør centrets parkeringsplads.
Parkeringsanlæggets tag udgøres af profilerede, buede aluminiumsplader.
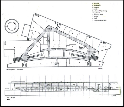
Centret er udformet som en stor torvehal med butikker i flere etager.
Centergaden strækker sig op igennem etagerne og afsluttes af et rytterlys.
Beskrivelse:
Frederiksberg Centret blev opført som den første bygning i en større byudvidelse på det tidligere baneterræn, som i dag er helt udbygget og bundet sammen af nye smukke pladsrum og en grøn forbindelse i form af en bypark, der strækker sig fra Nørrebro til Frederiksberg.
De lange og lukkede facadearealer langs centrets syd og nord facade fremstår levende og bevægede som en stor telt-konstruktion. Membranen er semitransparent, så der opstår et visuelt spil mellem den lyse bagvæg. Ved at etablere en lyssætning mellem klimaskal og yderste lag indklædning, fremhæves en urban, pladsmæssig oplevelse af området syd for centret.
Kilde: KHR
