Det private afsnit har udelukkende firerums lejligheder, der alle er udstyret med store opholdsaltaner.
Fælleshuset er placeret ud mod Limfjorden og danner et hængsel mellem to boligstokke.
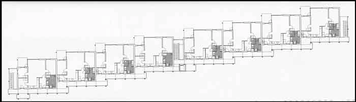
Bygningerne er udført med forskydninger som giver alle boligerne et hjørneparti i fuld rumhøjde mod Limfjorden.
Byggeriet er opført som tre-etages altanganghuse i trækonstruktion.
Elevatortårne og altangangsdæk er udført i beton.
Det almene afsnit er placeret i den nordligste vinkel med fælleshuset i toppunktet og er differentieret på to, tre og firerums lejligheder.
Beskrivelse:
Byggeriet er et forsøgsbyggeri under PPU - dvs. Proces og produktudvikling i Byggebranchen og udført under Casa Nova projektet. Bygherren er to andelsboligforeninger, den ene privat, den anden almen og hver med 50 boliger.
