Fiskerøgeriet Sjællands Odde

| Arne Jacobsen | 1943
Fiskerøgeriet Sjællands Odde
Download billede
Fiskerøgeriet Sjællands Odde Total
Total
Download billede
Fiskerøgeriet Sjællands Odde Bygningskomplekset set fra havsiden(nordvest).
Bygningskomplekset set fra havsiden(nordvest).
Download billede
Fiskerøgeriet Sjællands Odde Total
Total
Download billede
Fiskerøgeriet Sjællands Odde Skorstene
Skorstene
Download billede
Fiskerøgeriet Sjællands Odde Røgeriet Set fra sydøst
Røgeriet Set fra sydøst
Download billede
Fiskerøgeriet Sjællands Odde Halvtag
Halvtag
Download billede
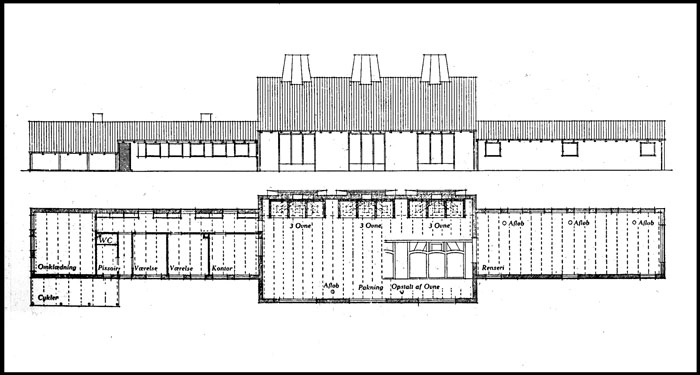
Fiskerøgeriet Sjællands Odde Plan og opstalt
Plan og opstalt
Download billede

Beskrivelse:

Røgeriet karakteriseres af sine hvidkalkede mure og røde vingetegl. Den kraftige markering af de tre skorstene tilfører et skulpturelt element til bygningskomplekset.

Emneord:

Tegl | Industribygninger | Røgerier | Kalkede huse | Skorstene |
Adresse:
Røgerivej 2-4
4583 Sjællands Odde
Se på Google Maps