Den afrundede del af bygningen rummer cafeteriaet.
Bygningens hovedfacader bærer med glaserede teglbånd og aftrappede detalier over vinduer tydeligt præg af at være murede.
Den centralt placerede søjle bærer en loftskonstruktion med fire store ovenlys.
Hjørneviduer kan åbnes i fuld højde, så malerier kan transporteres ind og ud.
Det intime cafeteria set fra udstillingssalen på første sal.
Møblerne i cafeteriaet er tegnet af Nanna Ditzel.
Beskrivelse:
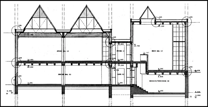
Bygningen består af tre murede blokke eller huse omkring et dobbelthøjt centralrum. De tre murede og berappede husblokke markeres med tre forskelligfarvede, glacerede bånd og indeholder de fem udstillingssale.
Stueetagens tre sale har alle ovenlys, med diffuserende glas og afskærmning mod sydsolen med zinkpanelser. Ovenlysets skrå undersider er bærende for strålevarmepanelerne og reflekterer ovenlyset, så væggene bliver jævnt belyste.
Kilde: Arkitektur.dk 1997, Nr. 1.
