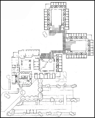
Centeret rummer to identiske værelsesfløje fritrukket af hovedbygningen.
Værelsesfløjene danner en U-form omkring et haveanlæg.
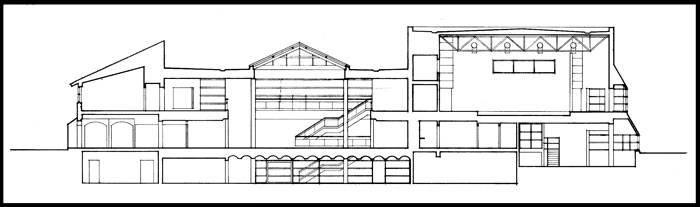
Den diminutive, noget indeklemte hovedindgang mellem energicentralen og administrationen.
Skolens energiforbrug dækkes i vid udstrækning af vedvarende energiformer, dvs. solvarme, jordvarme og vind.
Udsnit af præfabrikerede betonelementer med tegl.
Øverst Guldborgsund. Ved siden af uddannelsescentret findes Middelaldercenteret.
Anlægget er opdelt i mindre, letopfattelige enheder: Hovedbygningen og to U-formede elevfløje.
Øverst Guldborgsund. Ved siden af uddannelsescentret findes Middelaldercenteret.
Beskrivelse:
Centeret er anlagt i et fladt terræn ud mod Guldborgsund med en vindmølle som sit vartegn.
Bygningerne er opført med bærende konstruktion af beton og facaderne er udført i præfabrikerede teglelementer med skalmur i røde sten.
Nuværende Friplejehjemmet GuldBoSund
