Fra haven ses de lave sidefløje, som lukker sig tæt om bygningens højere midterparti, der rummer den centrale, højloftede opholdsstue.
Huset er opført på en sydvendt skråning nær Lyngby- og Bagsværd Sø. Haven ender i et skovbryn hvorfra bygningskroppen tegner sig mod himmelen.
Bøgehækken er her suppleret med en halvcirkel som således skjuler tøjstativet.
Adgangen til kælderen sker naturligt fra havesiden grundet den strækt skrånende grund. Dog er der også adgang til kælderen via en stejl trappe fra entreen.
Huset var, og er nu igen, malet i lys okker med bladgrøn på alle metaldele. Den utraditionelle farvekombination viser Heibergs ønske om at understrege den nye arkitektur med en tilsvarende ny og uvant farvesætning.
Rummet har fungeret som både opholds- og spisestue og sydvæggen er domineret af det store panoramavindue med tynde jernsprosser. Med en loftshøjde på 4 m. står stuen i stræk kontrast til de omkringliggende værelser, som er så lavloftede, så Heiberg måtte søge dispensation hos Lyngbys Bygningskommision!
Overalt i huset er der indbyggede skabe og reoeler.
Huset har overalt indadgående jernvinduer som uundgåeligt afgiver kondens. I dag er der sat nye fortsatsglas for at tætne konstruktionen.
Indretningen af køkkenet lå Heiberg meget på sinde, og detaljerede skitser og opmålinger viser, at han har foretaget grundige analyser og mange overvejelser.
I badeværelset er gulvet sænket i forhold til stue og værelser, og er indrettet med alle moderne instalationer som vandkloset, forsænket badekar og håndvask med varmt og koldt vand. Toilettes cisterne er anbragt i pigeværelsets skab!
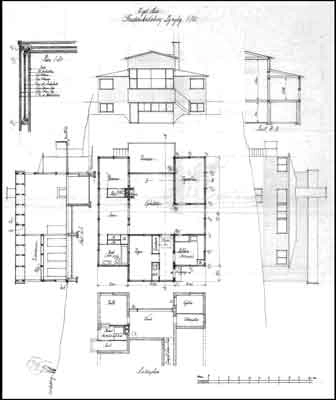
Edvard Heibergs tegning af huset. Læg mærke til tegningens øverste venstre hjørne, der viser at bygningens ydervægskonstruktion er træbeklædt bindingsværk.
Bygningen ejes af Realea, som er et ejendomsselskab for udvikling og bevaring, hvis formål er at opbygge og formidle en samling af unikke ejendomme. Det er smukt restaureret af Lundquist´s tegnestue i årene 2008-09.
Beskrivelse:
Det hus, som arkitekten Edvard Heiberg opførte i Virum i 1924, var stærkt inspireret af internationale arkitekturstrømninger fra Tyskland og Frankrig. Huset blev siden kaldt ’Nordens første funkisvilla’ og var en vision fra arkitektens side om en ny tid – en ny tid for byggeriet, for kvinderne, for arbejderne, for boligen. Realdania By & Byg erhvervede huset i 2006 for at sikre huset og dets fortælling.
Huset repræsenterer et nybrud i nordisk arkitekturhistorie og kan betragtes som den første bygning i Norden, hvor den internationale modernismes principper blev konsekvent ført ud i livet.
