Tagets markante ovenlys bringer dagslys til udstillingssalene.
Et antropomorft disponeret facadeudsnit.
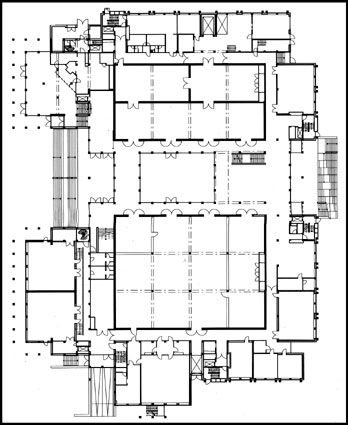
Alle bygningens mange funktioner bindes sammen af gange på hver etage.
Håndliste og glasede fliser på trappen fra foyer til første sal.
Dagslyset suppleres med kunstlys dagen igennem.
Bygningen er opdelt i en række volumer i varierende størrelse afhængigt af funktion.
Beskrivelse:
Dunkers Kulturhus er udformet som et differentieret bygningskompleks af sammenstillede bygningsdele, der forbindes af et internt gadeforløb. Kulturhuset er en by i byen og fungerer som byens opholdsstue. Den 18 meter brede passage deler og samler anlægget. Mod øst ved adgangstorvet mødes man af hovedentréen, hvor interne gadeforløb og brede trapper fører kulturhusets brugere op til bygningens mange kulturtilbud fordelt på fire etager. Korridorer skaber forbindelse fra entréen over en åben skulpturgård til den vestvendte foyer, hvor kulturhusets teater-, koncertsal og restaurant er placeret langs kajpromenaden.
Alle bygningdele har et fælles konstruktivt system - eller sprog - bestående af præfabrikerede søjler, bjælker og etagedæk med fyldninger af filtset tegl. Den enkelte bygningsdel er udviklet for at tilgodese netop de funktionsspecifikke krav, der stilles til den enkelte bygningsdel i en kompleks sammensat bygning.
Kilde: Kim Utzon
