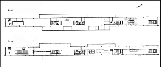
Passagerterminalen er udformet som et langt rør i to etager.
Bygningen hviler på tilbagetrukne ben af sort beton. I stueetagen findes lager og faciliteter for havnearbejdere.
Trappe og eskalator fører passagerer op i niveau med landgangsbroerne.
Bygningens lange forbindelsesgang fører forbi billetkontorer og rum for toldkontrol.
Ydervæg bag toldskranke, hvor lange, vandrette lameller leder dagslyset ind.
Til venste i billedet ses terminalens store opmarchområde.
Beskrivelse:
Arkitektonisk er den nye færgeterminal en hel del mere spektakulær end den gamle.
Terminalen med tilhørende kontrolstation er udenpå beklædt med forskellige typer glas, hvilket er med til at skabe et minimalistisk udtryk.
Netop glasbeklædningen og den bagvedliggende belysning giver bygningen en særegen karakter i skumring og mørke. Terminalen løftes op fra molen af sorte sokler, der rummer depot- og lagerarealer. Kontrolstationen, som betjener lastbiler og anden gods trafik, er udformet som en slags gård-bygning, hvor forskellige elementer samles under et fælles tag. Taget har en udskæring i midten, som betyder, at der falder lys på stationens centrale gård.
Kilde: DAC
