Vandkunsten blev i 2003 bedt om at udvikle visioner for de boliger, der skulle bygges omkring den store part i Ørestad City med udgangspunkt i Arkkis plan for den nye Ørestad.
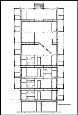
Tegnestuen har arbejdet på at nedbryde byggeriets store skala og at huse i denne størrelse skulle være andet end boæsker!
Flere steder går altangangene tværs i gennem huset.
Metalrammerne med trælamellerne kan bevæges til siderne.
Brandtrapperne er skjult bag perforerede metalplader.
Altangange glider over og bliver til private altaner på en måde, så man ikke kan undgå at møde sin nabo.
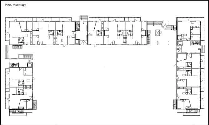
To steder åbner det u-formede byggeri sig mod omgivelserne - mod parken og nabohuset mod vest.
De grå områder markerer byggezoner, de hvide parker.
Beskrivelse:
City Husene er en hesteskoformet bebyggelse med hovedfacaden mod Byparken midt i Ørestad City.
Bygningshøjden er varierende og facadernes moduler er brudt af vinduer der er placeret i skiftende højder samt altangange og altaner. Dette gør bygningen mindre tung og det forstærkes af de gennembrudte bygningsåbninger der giver mulighed for ophold og uformelle møder med naboer.
Facaderne er udført i hvide betonelementer, mens trapper og altangange er udført i galvaniseret stål.
