De store glasvolumener brydes af den cylindriske kantinebygning.
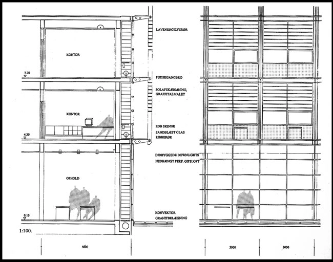
Bygningens brandtrapper gemmer sig bag semitransparente, perforerede stålplader.
Skolens hovedindgang er placeret overfor Frederiksberg Centret
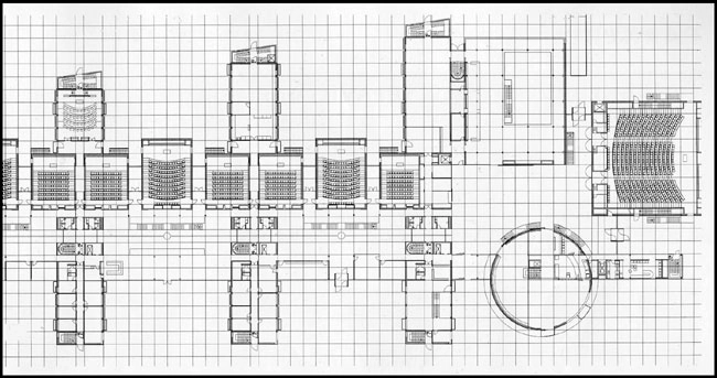
Handelshøjskolens funktioner er disponeret omkring en foyer.
Den store foyer forsynes med dagslys gennem et shedtag.
Foyeren er forlænget i et gennemgående, glasoverdækket studenterstrøg med kontorer og undervisningslokaler til begge sider.
Den højloftede kantine set fra bygningens stueetage.
Bygningen rummer flere små cafeer og kantiner, i dette tilfælde på skolens femte og øverste etage.
Bibliotekets rumudsmykning Desargues er udført af Steffen Jørgensen.
Der er indrettet studiepladser på bibliotekets lange facadedæk.
Bygningens største auditorium har 470 pladser. I alt rummer anlægget 28 større eller mindre auditorier samt en lang række undervisnings- og gruppelokaler.
Beskrivelse:
Handelshøjskolen danner væg i en markant pladsdannelse der omfatter Frederiksberg Centret, Hovedbiblioteket, Gymnasiet og den fredede stationsbygning.
CBS er holdt i jordfarver i gode robuste materialer. Tværgående længebygninger beklædt med skærmtegl, bygget op omkring en synlig stålramme, skaber en robust kamstruktur, der samtidig nedskalerer yderrummene foran bygningen. Stig L. Anderson har skabt lommeparkerne, langs sydfacaden, med støtte fra en række fonde.
