På hjørnet mellem Skolegade og Østergade fremstår huset markant med 5 etager og den østvendte facade er udført udelukkende i glas.
Ud mod Skolegade fremstår huset som en bygning med 4 etager og med udnyttet tagetage, der fungerer som kantine.
Facaderne er skalmuret med en mørk blødstrøgen teglsten fra Gørding Teglværk.
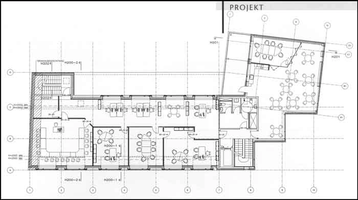
Bygningen er opført med søjlefrie rum hvilket giver stor fleksibilitet i indretningen.
Omkring år 1900 var Hotel Børsen beliggende på grunden og bag denne fandtes en lysthave med en frilufts koncertpavillon. I 1913 blev bebyggelsen udviet til også at omfatte det kendte forlystelsessted: Bonbonnieren.
Beskrivelse:
Det 2200 m2 store hus blev opført på rekordtid, det vil sige på kun 156 dage, og er bygget i forbindelse med skattesamarbejdet mellem Esbjerg, Varde, Blåvandshuk og Ølgod Kommuner.
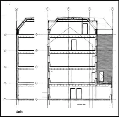
Bygningen er en hjørneejendom langs Skolegade og Danmarksgade i Esbjerg. Råhuset er opført i beton med bærende facadeelementer og skalmurede facader. De store vinduespartier er udført som aluminiumskonstruktioner.
