Hovedtrappe
Hovetrappen er, i lighed med facaderne, opført af galvaniseret stål
Fotograf: Andreas Trier Mørch
Download billede
Udspændt dæk
Et indskudt dæk spænder igennem hele bygningens længde. På første sal er administration, mødelokaler og kantine placeret.
Fotograf: Andreas Trier Mørch
Download billede
Beskrivelse:
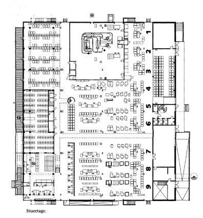
Vaskeriet er udformet som en fritliggende, rektangulær to-etages bygning indeholdende administration og produktionshal.
En udvendig stålramme kombinerer solafskærmning med ramper for afhæntning af varer, hovedtrappe og personaleterasse.
Produktionshallen præges af hvidmalede stålbjælker, der spænder over hele rummet.
