Nordfacade
Modsat sydfacaden er nordfacaden beklædt med horisontale teglbrystninger for hver etage.
Fotograf: Andreas Trier Mørch
Download billede
Facadedetalie
Detalje af overgang mellem søjle og hus
Fotograf: Andreas Trier Mørch
Download billede
Beskrivelse:
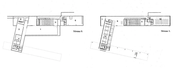
Bygningen er hævet over terræn anbragt på kraftige betonsøjler. Denne åbne bygningsstruktur giver en særlig rumlig oplevelse ved hjælp af forløb med mange retningsskift og variation materialerne imellem. Den efterstræbte dynamik, der kommer til udtryk i bygningens åbenhed og visuelle tilgængelighed, kræver en bevidst stillingtagen til brugernes behov for individuelle privatsfærer i rumlige intimiteter. Dette kommer til udtryk i rumdannelserne, facadernes detailudformninger, sammen med den skulpturelle tyngde, som inventaret skaber.
Kilde: KHR
Emneord:
Administrationsbygninger | Glasfacader | Tegl | Links: KHR - Wikipedia | KHR |
