Trappe
Hovedtrappen i den store aula som fordeler publikum til alle auditorierne
Fotograf: Andreas Trier Mørch
Download billede
Forhal
Det gennemgående loftsmaleri fortsætter op af muren til fjerde sal, og er udføret af kunstneren Bjørn Nørgaard.
Fotograf: Andreas Trier Mørch
Download billede
Beskrivelse:
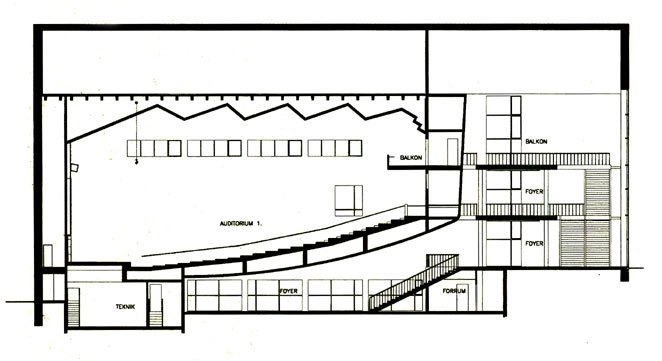
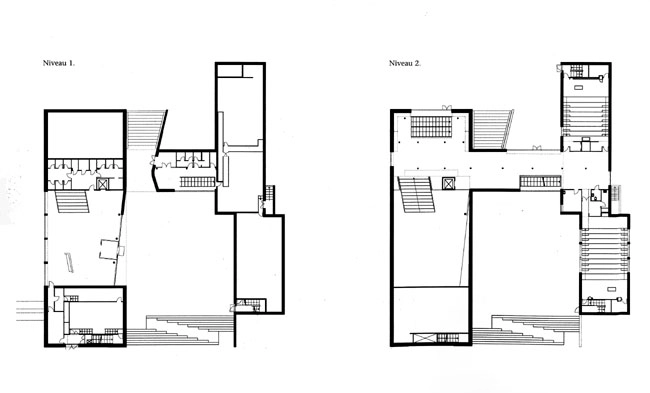
Auditoriehuset er den seneste tilføjelse til Århus Universitet. Som på alle øvrige bygninger er der anvendt gule tegl for at tilpasse sig Universitetets kontekst.
Den kliknebeklædte plads foran hovedindgangen er forsænket i forhold til adgangsvej.
Emneord:
Tegl | Uddannelsesbygninger | Auditorier | Universiteter | Links: C. F. Møllers Tegnestue |
