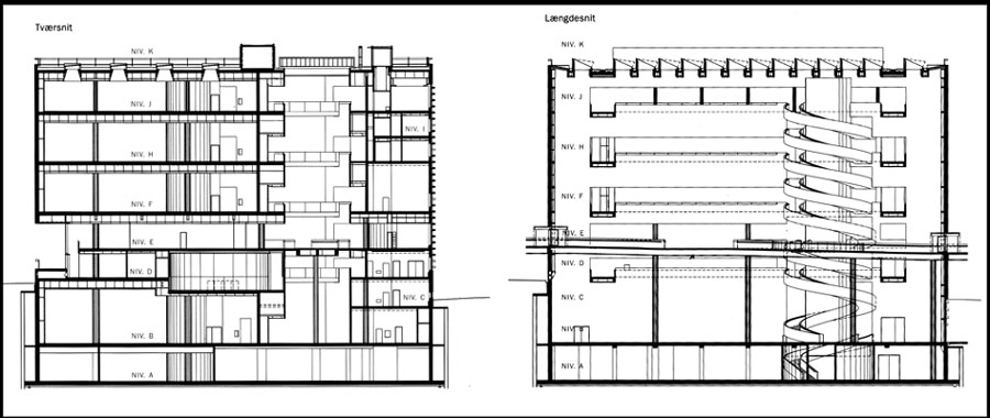
Store ovenlyspartier giver dagslys til den høje bygning.
Vindeltrappen forbinder samtlige museets 8 etager.
Vindeltrappen omslutter husets elevator.
Museet gennemskæres af en 35 meter højt kurvet kløft som udgør husets livsnerve og forbinder indgangspartierne mod syd og nord.
Indtryk af den dobbelthøje kælderetage under foyerarealet.
Boy er udført af Ron Mueck med et format der mactcher foyerens volumen.
Vindeltrappens landing i kælderetagen.
Fra museets cafeteria er der udsigt til Erhvervsarkivet tegnet af Hack Kampmann (se dette)
Samlingen af guldalder- og moderne kunst er placeret under tagfladens ovenlys.
Beskrivelse:
Det fritliggende kunstmuseum troner over et grønt område fra sit bakkedrag i byens centrum, her set fra Vester Alle.
Museet danner en kube på 52 x 52 meter som inklusive kælderetager er næsten 50 meter høj. Begge adgangsramper er indrettet for gangbesværede.
I indsnittet findes i det nedre niveau børnemuseum og auditorium og i det øvre niveau foyerområde. Etageadskillelsen er ophængt i stålstropper fastgjort i det overliggende dæk.
