Byggeriet rummer 30.000 m2 og har kostet 535 mio. at opføre. Det er det største byggeri i Sønderborgs 900-årige historie.
Den store skulptur foran bygningen på havnepromenaden er udført af Olafur Eliasson.
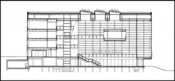
Hver længe løfter sig over promenaden, hvor de store glasfacader signalerer åbenhed og skaber kontakt mellem husets indre liv, havnepromenaden og byen. Det er Schønherr Landskab, der har udformet havnepromenadens langstrakte, bugtede forløb.
Alison er et sammenhængende bygningsanlæg, som er opdelt i tre selvstændige funktioner. Facaderne er beklædt med hvid kinesisk granit og mørk solafskærmning, hvoraf 60 m2 er selvjusterende solcellepaneler.
Hovedindgang til både bygningen og DSB´s billetkontor er beliggende på bygningens bagside overfor jernbanestationen. Man kan således ankomme direkte til døren hvad enten man vælger at sejle, køre biol eller tage toget.
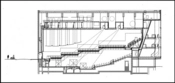
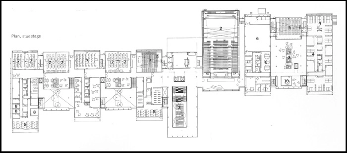
Man ankommer centralt i det store atrium, der rummer både kantine og fællesarealer. Den brede trappe har siddemuligheder som i et amfiteater.
Fire af de ti bygningskroppe er i virkeligheden store atrier, der giver interiøret en let og luftig karakter med masser af dagslys og mulighed for effektiv naturlig ventilation.
Stueplanet er reserveret fællesfunktioner, som bringer forskere, erhvervsfolk og studerende i kontakt med hinanden - både formelt og uformelt. Den røde næsten fritsvævende boks i 3. sals højde er indrettet som fire fleksible mødelokaler med mobilvægge.
Alsion består af ti længebygninger, der er indbyrdes forbundet med studiestrøget, som løber på langs af hele bygningen.
Forskerparken er placeret i den nordlige ende af byggeriet.
Forskerparken har rentrumsfaciliteter til brug for avanceret nanoforskning.
Universitetsbiblioteket er placeret i den sydlige ende af byggeriet.
Også fra biblioteket er der en formidabel udsigt over Als Sund.
Alle auditorier, hvoraf det største har plads til 130 studerende, er alle beliggende i det fælles plan - stueetagen.
Undervisningsrum og auditorier er udført med lyddæmpende glasvægge mod de langsgående forbindelsesgange.
Når man skal ind i koncertsalen går men gennem Olafur Eliassons kunstværk, som består af hundredvis af titanium-brændte keramiske kæmpekakler glaseret med rød lystre glasur.
Udsmykningen på koncertsalens skrånende ydervæg er enkel og meget effektfuld. Det samlede budget har været på 35-40 mio. kr. og udsmykningen er således en af kunstnerens absolutte hovedværker i Danmark.
Lyset får væggens tredimensionelle karakter til at træde frem og spejler det røde epoxy gulv og de forbipasserende.
Koncertsalen har kostet 120 mio. kr. og er skræddersyet til Sønderjyllands Symfoniorkester, som hermed får optimale betingelser. Salen kan rumme 1001 tilskuere. Det er det engelske firma Arup Acoustics, der har været ansvarlig for akustikken.
Koncertsalen er beklædt med smukke, lyse asketræes paneler og er overraskende simpelt udformet som en såkaldt shoe-box, som rumligt er optimalt i akustisk henseende.
Rummet er elegant i mødet mellem de røde stole og hvide balkoner. Belysningen er placeret i mødet mellem væg og sidebalkon og dermed integreret i rummet.
Byggeriet er beliggende på Jyllandssiden af Alssund og er finansieret af Bitten og Mads Clausens Fond og Sønderborg Kommune og med Statens Forsknings- og Uddannelsesbygninger og Forskerpark Syd som bygherre.
Anlægget består af en kam af længebygninger adskilt af atrier. Kamstrukturen deler byggeriet op i en række rytmiske anslag, og i skala og princip svarer de enkelte huse i anlægget til Sønderborgs bebyggelse ud til sundet. Motivet med de gentagne gavlhuse er velegnet til en senere udbygning, da man nemt kan tilføje de ekstra 10.000 m2, som lokalplanen giver plads til.
Det var en donation fra Fonden Realdania der gjorde det mulig at indarbejde en koncertsal i universitetsbyggeriet. Donationen fik Sønderborg Kommune til også at bevillige penge til at skabe et nyt hjemsted for Sønderjyllands Symfoniorkester.
Beskrivelse:
På et tidligere jernbaneareal ud til Als Sund i Sønderborg ligger den usædvanlige kombination af funktioner, der udgør Alsion, som er et center for viden og kultur i den syddanske region. Bygningen har front mod øst og har en formidabel udsigt over sundet.
Byggeriet fremstår som et arkitektonisk vartegn for Region Syddanmark, der er det eneste sted i Danmark, hvor uddannelse, forskning og kulturliv er samlet under et. Forskellige miljøer arbejder sammen og skaber fælles resultater og synergi-effekter, der kan indgå i den regionale udvikling. Havnepromenaden forbinder, som ønsket, universitet, forskerpark og koncertsal og skaber også en forbindelse til resten af byen.
Koncertsalen har plads til ca. 900 gæster, og til salen er knyttet faciliteter, så den fungerer som hjemsted for Sønderjyllands Symfoniorkester.
Kilde: Realdania
