Det store tagudhæng skærmer i sommermånederne mod direkte sollys. Når solen står lavere kan markiser sænkes lodret fra forkanten af tagudhænget.
Gårdhaven hvor de ældste elever kan opholde sig i frikvarterene.
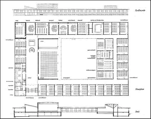
Lysgården er fremkommet som følge af at Gymnasiet er blevet udbygget med en ny fløj mod øst.
Gangene er beliggende langs gårdhaven idet alle klasselokaler vender ud mod bygningens facade.
Skolen har netop indviet en helt ny fløj, der er indrettet til studieområde for eleverne med biblioteksfunktioner og elevarbejdspladser
med computere.
Computerværkstedet i den nybyggede østfløj.
Kantinen er beliggende i kælderen under vestibulen.
Den flot svugne trappe mellem kantine og vestibule.
Tribunen i festsalen kan omdannes til scene. Rummet har direkte adgang til garderoben i kælderen og kan således anvendes til arrengementer uden skolens øvrige funktioner berøres.
Vestibulen set mod nord - eller væk fra hovedindgangen.
Th. i billedet ses nedgangen til kantinen.
Relieffet er udført til Gymnasiet i 1959 af den dengang ret ukendte Asger Jorn og regnes idag for et af hans hovedværker.
Det keramiske relief blev udfør og brændt på fabrikken Mazzotti i Albisola i Italien.
Plan efter udvigelsen hvor de rum, der ses nederst og en ny lysgård, er tilføjet bygningen. Denne plan skal drejes 90o mod uret for at svare til plan II.
Beskrivelse:
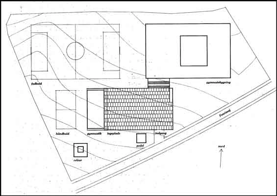
Forslaget til Gymnasiets udformning vandt 1. præmie i en konkurrence udskrevet i 1953 som blev vundet af de dengang unge og uprøvede arkitekter Richter og Nielsen.
Adgangen til Skolen sker over en stor flisebelagt plads ad en bred trappe. Bygningen ligger på en bakkeskråning, hvorfra der er udsigt over byens tage. Facadebeklædning og trappen er udført af lysegrå kalksten fra Gotland. Til rammerne til vinduer samt taginddækning er der anvendt aluminium.
