Brandtrappe
Teglsten dominerer bygningens arkitektur. Bemærk det lodrette murforbandt.
Fotograf: Andreas Trier Mørch
Download billede
Fordelingsgang
De brede gange foran faglokalerne står alle i direkte kontakt med gårdrummene.
Fotograf: Andreas Trier Mørch
Download billede
Fordelingsgang
Fordelingsgang med trappe til første sal.
Fotograf: Andreas Trier Mørch
Download billede
Beskrivelse:
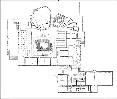
Bygningsvolumerne krones af højtsiddende glaspartier der er nedtonet ved hjælp af lodrette træsprosser. Se også Seminarieskolen, der er bygget på nabogrunden af de sammen arkitekter blot et år senere.
Emneord:
Tegl | Uddannelsesbygninger | Gårdhaver | Seminarier | Vinduessprosser | Links: Aalborg Seminarium - Wikipedia |
