8-taller er bygget i den sydlige del af Ørestaden tæt ved Metroens endestation
8-tallet ligger aller yderst i Ørestad syd og er et stort byggeri med 476 ejerlejligheder, en række erhvervslejemål, butikker, en børneinstitution og en cafe under samme tag.
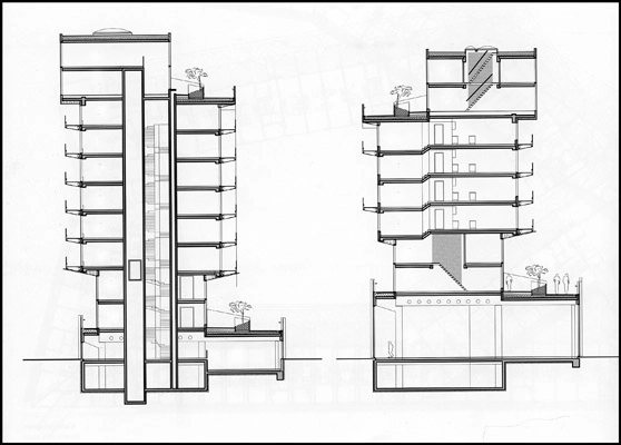
Byggegrunden var udlagt til boliger og erhverv, men i stedet for at skille funktionerne ad har tegnestuen stablet dem oven på hinanden. Erhverv er placeret i bunden, hvilket giver god kundekontakt, og boligerne oven på for at udnytte udsigt, luft og sol.
Den uniforme metaloverflade giver huset et samlende udtryk, der får bygningen til at fremstå som ét massivt objekt.
I hjørnet mod sydvest bliver huset presset helt ned af to stejle tagskråninger for at give gårdrummet lys og udsigt. Under spidsen er Cafe 8-tallet beliggende.
Helt op til 10.ende etage kan man spadsere ad en sti, hvis små terrassehaver gør den til en kilometer langt skrånende byrum.
Den skrå sti er understøttet af mange små jævnt fordelte forskydninger, der skaber stor variation i lejlighederne, hvor der kan være op til 5 meter til loftet.
Det nederste lag boliger er haverækkehuse i to etager, dernæst etplanslejligheder med altaner og øverst igen en række penthouse lejligheder med haver.Gårdrummet har græsplæne og en indhegnet legeplads til børneinstitutionen i stueetagen.
Der kan spadseres rundt om og på bygningen på en 1 Km. lang sti, der også giver mulighed for at komme op og få en flot udsigt over den flade Fælled.
Til forskel for almindeligt etagebyggeri har man i form af sin have en privat bufferzone foran boligen - ligesom i Kartoffelrækkerne.
Denne stablede landsby har en udnyttelsesgrad på 300% og har et helt andet udtryk end de store boligbyggerier fra 60erne og 70erne, hvor der var udlagt store åbne områder mellem husene. Her er man altid tæt på hinanden og har et fællesskab omkring haverne og stien, noget man ikke kan opnå i et almindeligt etagebyggeri, hvor man kun bevæger sig op og ned omkring trappe- og elevartorsøjler.
Udgangspunktet for 8-tallet har været en meget stor byggegrund, en hel karré, beliggende i den yderste række mod den fredede Kalvebod Fælled og de nye søer i Ørestad Syd, som byggeriet har en forrygende udsigt over.
Planen angiver et 8-tal i ordets bogstaveligste forstand. Hvor de to bygninger mødes er placeret rum på i alt 500 m2, der huser fællesaktiviteterne. Samme sted skærer en 9 m. bred passage gennem bygningen og forbinder de grønne områder mod vest og kanalen mod øst horisontalt. Bygningerne har et samlet areal på 62.000 m2.
Lejlighederne er placeret øverst i bygningen, mens erhverv er placeret i de nederste lag. Tanken har været at lejlighederne skal nyde godt af udsigten mens erhvervslejemålene skal smelte sammen med bylivet på gadeplan.
Se på Google Maps
