Den nye indgangsportal har på sin vestlige side en souvenir- og gavebutik, der dog kun henvender sig til havesiden og gæsterne i Zoo.
Beskrivelse:
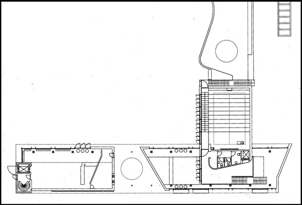
Indgangspartiet til Zoologisk Have blev vundet i en arkitektkonkurrence 1996 af Christian Cold. Bygningen stod færdig 1998 - her set fra Roskildevej. Den nye indgangsportal står som en hvid ramme omkring en mørkegrå butiksklump og et træskrin i to etager, der indeholder billettering og opgang til biograf og foredragssal.
Med reference til Le Corbusiers Esprit Nouveau pavillion fra 1924 er der en rund udskæring i taget over billettering og indgang til Zoologisk Haves nye indgangsportal. Den høje indgangsportal er båret af slanke søjler og har på sin østlige side facader af træ omkring billetluger og opgang til biograf/foredragssal.
