Beskrivelse:
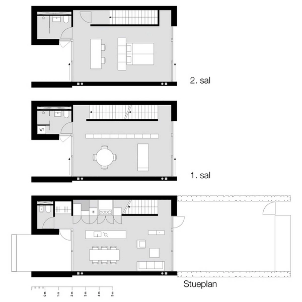
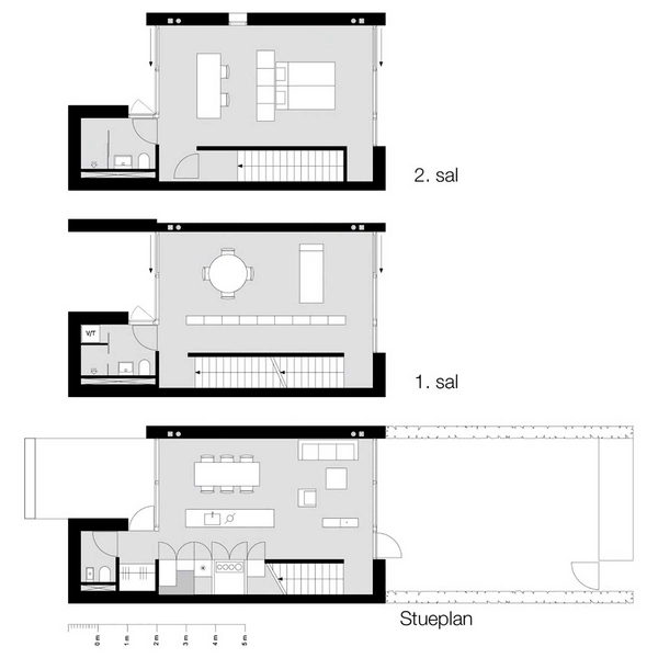
Den 4.600 m2 store bebyggelse rummer 30 byhuse i tre etager, med egen have og terrasse. Rækkehusene har store vinduespartier i nord-øst og syd-vestlig retning. Boligerne er på 3-5 værelser fordelt på 152-158 m2. Town House er som naboerne Stay (ombygning af A-huset), Next door, Yardhouse og Sfinxen tegnet af Holgaard Arkitekter, og danner tilsammen en hel ny bydel på Islands Brygge. Byhusene fremstår med hvidpudsede facader og en 2,4 m høj sokkel, udført i sandsten.
Emneord:
Vinduer | Glas | Boligbebyggelser | Boliger | Boligbyggeri | Rækkehuse | Byhuse | Adresse:
Se på Google Maps
Se på Google Maps
