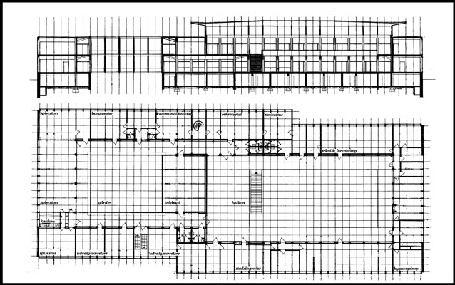
I sin længderetning er rådhuset anlagt parallelt med adgangsvejen men trukket tilbage fra denne af en mellemliggende forplads til bl.a. parkering af biler.
Rådhusets kontorer omkranser to indre lysgårde eller fordelingsrum med møbler af Poul Kjærholm.
Haveanlægget er vokset så meget til at hyggelige opholdsarealer uden for rådhuset bliver et tilskud for det stramme elementbyggeri.
Indtryk fra overetagen i en indre, overdækket lysgård på Tårnby Rådhus.
Beskrivelse:
I arkitekturhistorien henføres rådhuset under modernismen, hvor første byggefase betragtes som et hovedeksempel på samtidig japansk arkitekturs indflydelse på dansk bygningskunst. Første byggefase fremstår med en klassisk enkelthed i opbygningen, der tillige med en asketisk farveholdning og en forfinet detaljering tilfører huset repræsentativ værdighed. Ved anvendelse af de samme arkitektoniske motiver i de senere byggefaser – bygningernes rumlige organisering, bygningsblokkenes proportionering, samt bygningsdetaljernes form, farve og materialevirkning – har anlægget opnået en bemærkelsesværdig arkitektonisk helhedskarakter. Omgivelserne understøtter det synsmæssige indtryk af rådhuset, samtidig med, at de repræsenterer selvstændige arkitektoniske kvaliteter.
Kilde: Lex.dk
