Beskrivelse:
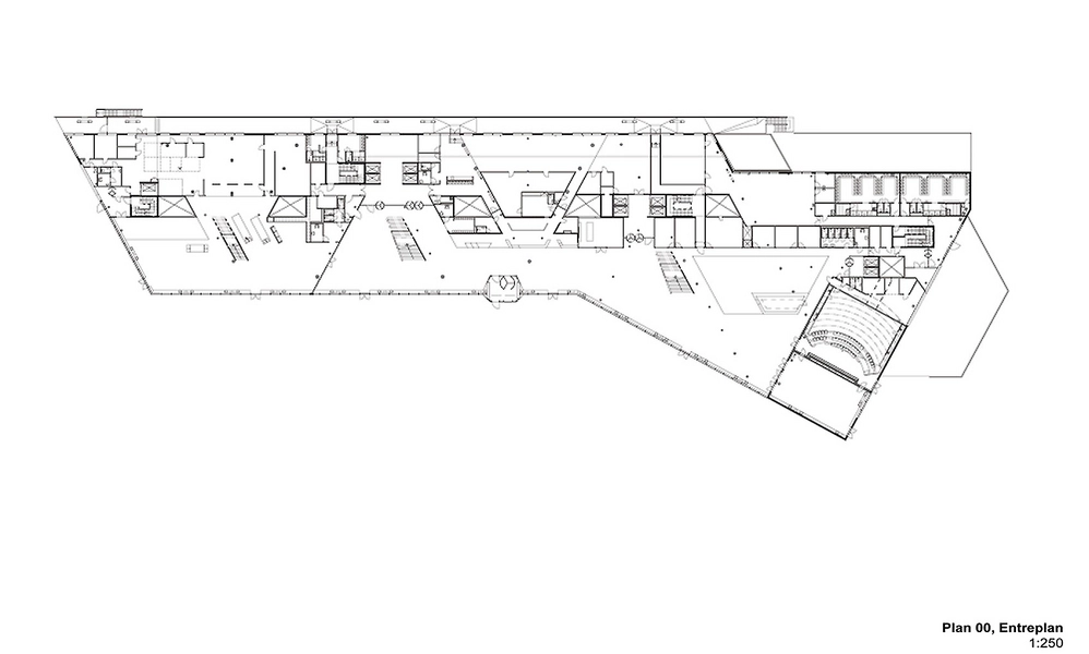
Det 45,000 m2 store hovedsæde for Swedbank huser 2.500 medarbejdere. Ved bygningens udformning har arkitekterne taget afsæt i Swedbanks kerneværdier: åbenhed, enkelhed, omtanke og holdbarhed. Huset er tænkt og tegnet indefra og ud, og udviklet omkring en plan, der bygges op af tre mindre V-formede planer. Det store volumen brydes dermed ned til en menneskelig skala, så bygningen både indvendig og udvendig virker imødekommende og overskuelig. De 2 nederste etager er indrettet med restaurant, konferencefaciliteter og receptionsområde og udstyret med åbne glasfacader, der understreger deres semioffentlige funktioner. Facadens opdeling formidler den funktionelle disponering og bryder fladen op i mindre geometriske enheder.
De omgivende grønne området er udført af Land Arkitekter.
