Sognegård (interiør)
Den store mødesal er domineret af parketgulv og hvide vægge samt et forsænket loft der friskåret af vægge tilsyneladende svæver frit i rummet.
Fotograf: Per Munkgaard Thorsen
Download billede
Sognegård (trapperum)
Et lyst trapperum forbinder det øvre møderum med den langt større mødesal i sognegårdens bund.
Fotograf: Per Munkgaard Thorsen
Download billede
Beskrivelse:
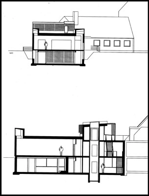
Den ny sognegård har fået et dekonstruktivistisk tilsnit med små drejninger i forhold til den rette vinkel - i såvel opstalt som plan.
Den ny sognegård er tilbygget et kirkeanlæg tegnet af Thyge Hvass i 1967.
Emneord:
Kirker | Samlingslokaler | Tilbygninger | Mødelokaler | Menighedshuse | Medborgerhuse | Sorgenfri | Links: Juul Frost - Wikipedia | Juul Frost Arkitekter |
