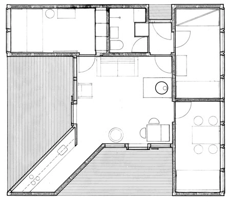
Fra den centralt beliggende opholdsstue er der via glasskydedøre adgang til en overdækket terrasse i syd og en ditto i vest.
Huset rummer tre kamre der alle måler 2 x 4 meter i grundplan. Her et udsnit af forældresoveværelset der vender mod vest.
Værelset mod sydøst anvendes fortrinsvis som arbejdsrum. Husets væg- og facadeelementer er 1 meter brede, isolerede træelementer samlet med svalehaler.
Terrassen mod vest er husets største. Bag det lange horisontale vindue findes husets køkken - og gennem et uindrammet skydevindue kan servering foregå direkte fra køkken til terrassen.
Den overdækkede vestterrasse har en udstrækning på 16 kvadratmeter. Det smalle køkkenvindue til højre for stuen fungerer som gennemretningsskab når der skal serveres på aftenterrassen.
Det bebyggede areal udgør 81 kvadratmeter hvoraf de to terrasser tilsammen udgør 25 kvm. og selve boligarealet blot 56 kvm.
Beskrivelse:
Det bræddebeklædte hus er indrammet af laminerede dragere og søjler mens den tilbagetrukne terrasse skal sikre læ.
Huset er malet violet med sølvfarve på terrasseindhakket og sort på søjler og hovedrem.
Emneord:
Farver | Fritidshuse | Sommerhuse | Træ | Terrasser | Byggesystemer |Se på Google Maps
