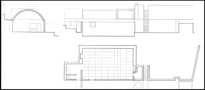
Fra indgangsniveauet på villaens øveste etage markerer hovedindgangen sig med et råglasparti og et toiletrum, der som en konveks figur udgør et selvstændigt formelement.
En krum gangforbindelse med cylindriske ovenlys binder boligens opholdsafdeling med soveafsnit og gæste/børneafdelig.
Rumoplevelsen i den krumme gangforbindelse der har hovedindgangen i sin østlig ende.
Spiseafdelingen er placeret umiddelbart foran køkkenet og på niveau med dette - en halv etage højere end opholdsafdeligen. Indersiden af det cylindriske ovenlys over spisebordet er malet blåt.
Fra spisepladsen fører en trappe en halv etage ned til opholdsstue og bibliotek. Det brede ovenlys ved havefacaden medvirker til at mindske lyskontrasterne mellem stue og haverum.
Pejsen er anbragt i opholdsafdelingens inderste hjørne ved trappen. Bunden af pejsen er foret med frie teglformer mens bogreolerne er forsænket ind i væggen.
Den bagerste væg i opholdsstue med spiseafdeling og køkken ovenfor trappens landing.
Interiør med trappen der fører fra hovedindgangen med råglansparti og ned til haven med arkitektens karakteristiske farvesætning med rød og blå.
Det høje rum der fører ud i haven har opnået en særlig lethed ved at male loftet i en spejlende højglans.
Fra volden skyder de tre bygningsvolumener frem i haverummet - hver med sin karakteristiske tagform. Det forreste afsnit var oprindelig gæste/børneafdeling, det midterste med hvælvet loft var forældresoveværelse mens det fjerneste stadig er spise/opholdsafdeling.
Til højre for Mogens Lassens hovedværk ses to anderledes kubistisk-funktionalistiske huse af samme arkitekt.
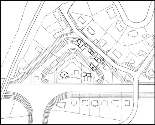
I slutningen af 1800 tallet anlages omkring København et fæstningsanlæg. I 1930-erne blev dele af dette frigivet til bebyggelse. Et af disse batterier, Christiansdholmsfortet, blev i 1938 bebygget med ialt ti huse, hvoraf Mogens lassen har tegnet de fem samt et atelie (#6)
Et af de huse der har taget form af Fortet er det senest opførte fra 1957. Det gamle kanontårn har kunnet danne fundament for bygningen - deraf dens runde form.
Beskrivelse:
Villaerne er opført på det nedlagte Christiansholms Fort langs den ene af en smal slugts skrænter, og har alle indgang i første sals højde. De er alle inspireret af Le Corbusiers fem arkitektoniske krav til et moderne hus: det skal løftes på søjler, have en åben rumplan, en frit komponeret facade, vinduesbånd og en taghave.
Både nr. 5 og 7 er opført i 1935 og er i tre etager. Villaerne har ingen vinduer mod nord, mens den ikke-bærende sydfacade har skydevinduer fra gavl til gavl.
Nr. 5 byggede Mogens Lassen til sig selv og inspirationen fra Le Corbusier ses tydeligt. Husets kubistiske form, de glatte hvide flader, de ubrudte vinduesbånd og ikke mindst den åbne tagterrasse er alle lån fra Le Corbusiers tidligste værker.
Også indenfor er huset funktionalistisk på grænsen til det snusfornuftige. Fra køkkenet kan maden rækkes ind i spisestuen, der står i åben forbindelse med en stor dagligstue. På førstesalen er en nedfaldsskakt, så vasketøjet ryger direkte ned i vaskekælderen.
Kilde: DAC
