De hældende tagflader og den robuste beton integrerer sig håndfast i landskabet.
Detalje af materialekarakteren som den opleves fra kursistværelser.
Den rustikke reception med skifergulve og rå betonoverflader.
Karakteren i undervisningslokaler er mere feminin end stedets maskuline arkitekturramme.
Mørke pendler og stolepolstringer forstærker anlæggets tyngde.
Trapper følger bakkens hældning mens korridorer til kursistværelser løber parallelt med terrænkoter.
Set fra luften optager parkeringspladsen mere plads end Scanticon selv.
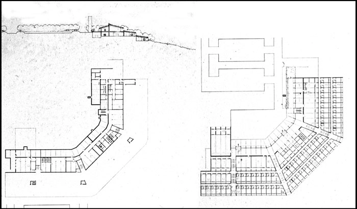
Øverst i terræn er fællesfunktionerne mens værelsesafsnittene ligger trinvis nedenfor.
I snit opfattes bygningernes placering i terræn tydeligst.
Beskrivelse:
Scanticon er placeret øverst på en skrænt i det naturskønne Skåde Bakker med udsigt over skovene ved Moesgård og Aarhus Bugt. Med græs og blomster på tagene af de rå betonbygninger, som ligger i terrasser, er det som om, at bygningerne er vokset ud af bakken. Med græs på tagene har arkitekterne tilstræbt en nænsom tilpasning til beliggenheden i Skåde bakker.
