Beskrivelse:
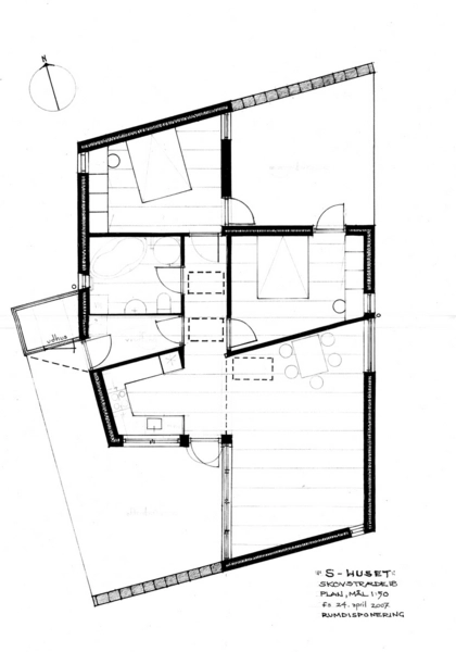
S-huset er et fritidshus i Hummingen opkaldt efter sin grundplan, der med to terrasser mod henholdsvis øst og vest danner bogstavet S. Huset er opført i gråsorte teglsten efter bygherrens ønske om et sommerhus der ikke kræver vedligeholdelse.
Emneord:
Tegl | Fritidshuse | Sommerhuse | Mursten | Adresse:
Links: Flemming Skude Website |
