Rødovre Rådhus

| Arne Jacobsen | 1956
Rødovre Rådhus
Fotograf: Sandra Gonon
Download billede
Rødovre Rådhus
Fotograf: Sandra Gonon
Download billede
Rødovre Rådhus
Download billede
Rødovre Rådhus
Download billede
Rødovre Rådhus
Download billede
Rødovre Rådhus
Download billede
Rødovre Rådhus
Download billede
Rødovre Rådhus
Download billede
Rødovre Rådhus
Download billede
Rødovre Rådhus
Download billede
Rødovre Rådhus
Download billede
Rødovre Rådhus
Download billede
Rødovre Rådhus
Download billede
Rødovre Rådhus
Download billede
Rødovre Rådhus
Download billede
Rødovre Rådhus
Download billede
Rødovre Rådhus
Download billede
Rødovre Rådhus
Download billede
Rødovre Rådhus
Download billede

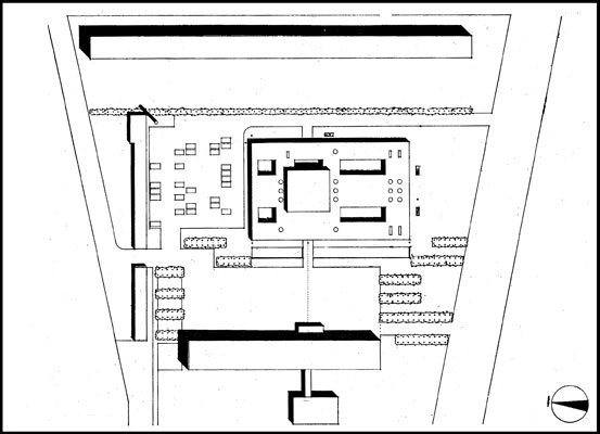
Beskrivelse:

Rødovres kollektive grønning afsluttes mod øst af et treetagers administrationsbyggeri med curtain walls. Rådhussalen til venstre i billedet skyder sig ud på grønningen foran hovedbygningen.

Emneord:

Natursten | Glas | Administrationsbygninger | Curtain Wall | Rådhuse | Kontorhuse |
Adresse:
Rødovre Parkvej 150
2610 Rødovre
Se på Google Maps