Poul Henningsens Hus - PHs eget hus
| Poul Henningsen • Viggo Møller-Jensen • Drachmann Arkitekter | 1937Beskrivelse:
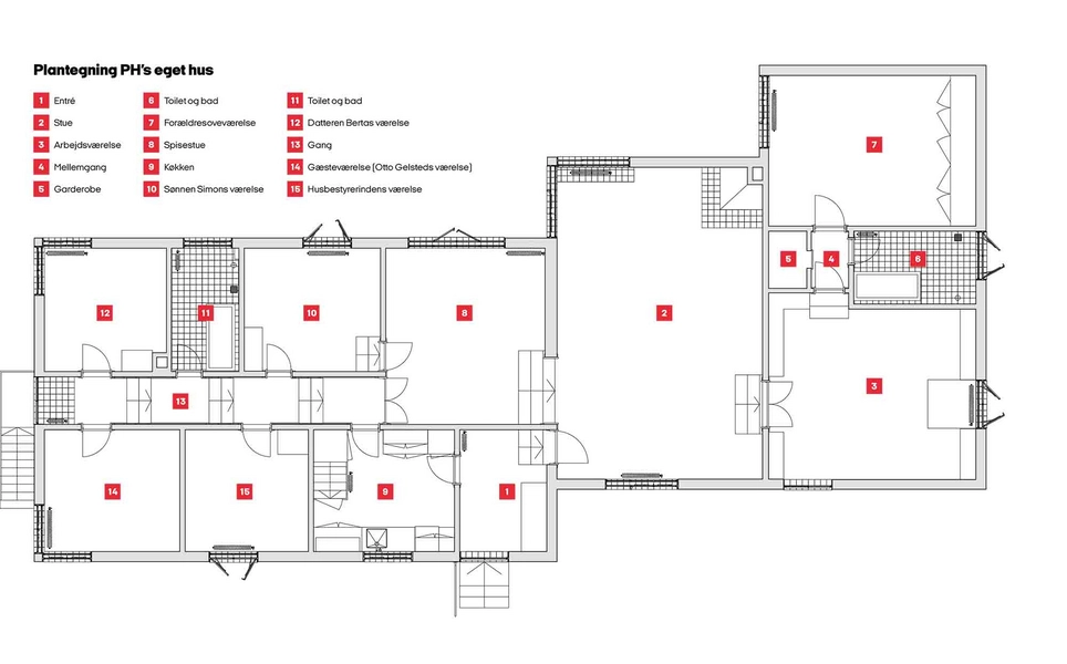
Poul Henningsen opførte i samarbejde med Arkitekt Viggo Møller-Jensen et enfamiliehus til sig selv og sin familie. Huset blev bygget på en stejl bakke i 11 niveauer, og kendestegnes af den åbne planløsning med skydedøre som giver gennemkig og forbindelser mellem niveauerne. Huset er opdelt i forældreafdeling, teenageafdeling og fællesrum, og er på den måde en forløber for parcelhuset.
Ejendommen blev bygget på kort tid i præfabrikerede betonelementer. I tråd med den funktionelle byggetradition blev huset opført uden forskønnende ornamenter, med tagpap på taget og industrielle jernvinduer og jerndøre, bemalet med rød blymønje for holdbarhedens skyld. Med sine simple profileringer, enkle materialer og stærke farveflader er huset stilskabende for sin tid, og det blev fredet i 1995.
Drachmann Arkitekter stod i 2014-2016 for restaureringen af huset, hvor den oprindelige funktionalistiske farvesætning blev genskabt og husets specielle tapeter genoptrykt.
