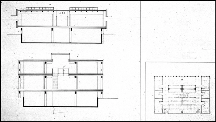
Hovedkonstruktionen er beton. Dragerne i spændbeton og dæk af TT-plader.
Facaderne på kontorhuset er rykket tilbage og efterlader en brand- og pudsealtan, der samtidigt giver solafskærmning.
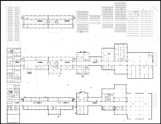
Udflytningen til Hillerød skete i to etaper, hvor fabrikshallerne (tv) blev bygget først. I kontorbygningen har glasfacaderne stolper af redwood og gående rammer i mahogni.
Både kontorhus og fabrikslokaler er løftet op på en høj kælder.
I midten kontorbygningen, tv. laboratorierne og th. fabrikshallerne.
Beskrivelse:
Bygningen er opført i præfabrikerede betonkomponenter. Glasfacade der er trukket tilbage, så etagedækkene danner solafskærmning, har stolper af redwood og gående vinduer i mahogni.
Kontorhusets indvendige materialer er ganske stilfærdige, alle vægge er hvide, al træværk i fyr, gulvet i hallen i grønlandsk marmor. Øvrige gulve har lyse tobaksfarvede tæpper.
Kilde: Arkitektur DK 1974, Nr. 5, side: 175-179
