Overformynderiet
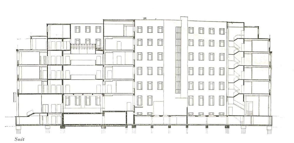
| Frits Schlegel • Rørbæk & Møller Arkitekter • Bertelsen & Scheving Arkitekter | 1937 - 2019Af bygningens seks etager er femte og sjette etage trukket tilbage fra hovedfacaden, og der er indrettet tagterrasser. Femte etage dog kun mod Holmens Kanal.
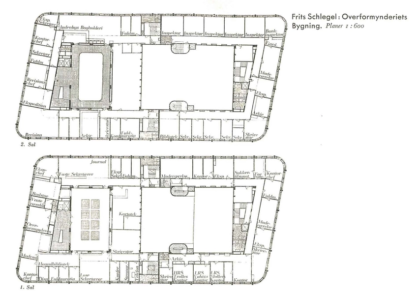
Grundplanen danner et parallelogram med to gårdrum, hvoraf det ene er overdækket og indeholder Overformynderiets aula.
Afstanden mellem de synlige søjler svarer til to enkeltkontorer med et vindue hver. Fra Laksegade var der indgang for lejerne.
Indgangen markeres af en betonplade med navnet i relief. Facadens grønlandske marmorplader har vist sig problematiske og skal ofte udskiftes.
Som de oprindelige vinduer er de nuværende udstyret med udvendige rustrøde jalousier.
I stueetagen lå Overformynderiets ekspedition. For at få oplyst det dybe lokale var loftet forsynet med glassten. Nu bliver lokalet benyttet som reception.
Bygningens aula med ovenlys strækker sig over tre etager med to balkoner. I gulvet er der otte felter med glassten, som skal oplyse lokalet nedenunder.
Ud over at dørpartiet fra aulaen til hovedtrappen på hver etage er udført i glas, er der også anbragt et vindue for at få så meget dagslys til trapperummet som muligt.
Beskrivelse:
Bygningen blev opført som domicil for Overformynderiet og delvis udlejningsejendom.
Den er konstrueret med et jernbetonskelet, og udfyldningsmurværket er beklædt med plader af grønlandsk marmor.
Installationer samt varme- og udluftningskanaler er lagt i hulrum i etageadskillelserne, således at man har opnået størst mulig fleksibilitet, hvad angår indretning af kontorlokalerne.
Rørbæk og Møller har stået for restaurering, ombygning og modernisering af interiør i 2016-2019, mens Bertelsen og Scheving har stået for facaderestaureringen.
Emneord:
Ovenlys | Marmor | Kontorhuse | Tagterrasser | Jernbeton | Domiciler | Funktionalisme | Glassten |Se på Google Maps
