Beskrivelse:
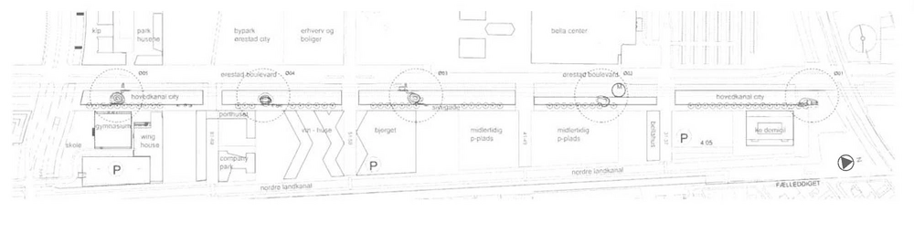
Tre runde trækonstruktioner udgør ’Øerne’ i Ørestad. Inspirationen for ’Øerne’ var ringe i vandet, som breder sig og er med til at skabe liv på langs og på tværs af kanalen. Øerne fungerer som genveje hen over kanalen, og skaber fine mødesteder og rum for byliv. De tilfører Ørestad tiltrængte elementer i en menneskelig skala, og kantakt til det vand, som ellers bare er visuelt tilgængeligt. Øerne er placeret ud for Bjerget, Ørestad Bypark og Ørestad Gymnasium.
Emneord:
Broer | Rekreative anlæg | Trædæk | Træ | Adresse:
Se på Google Maps
Se på Google Maps
