Blandt de mange nybyggerier på havnefronten udmærker Nykredits hovedsæde sig som det mest delikate og velproportionerede - og udpræget minimalistisk.
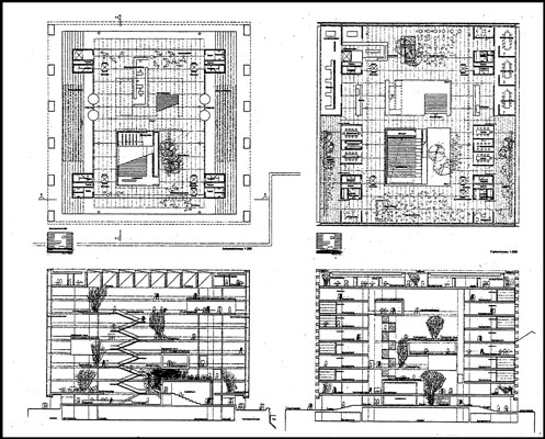
Set fra nordvest afsløres kontorhusets opbygning med kontorlandskaber i to modstående sider og i midten et gennemgående atrium, der anvendes til puser og som husets "lunge".
På to modstående facader - sydøst og nordvest - har kontorhuset en extra glasfacade til sikring af ventilationssystemets optimale virkning.
Til to sider - nordøst og sydvest - har kontorhuset lave marmortrapper i fuld facadebredde. Trapperne fører op til husets foyeretage.
Placeret for enden af Kalvebod Brygge ligger hovedsædet hvor en primær indfaldvej møder centrum.
Etagedækkene bæres af søjler langs kanterne. Omvendt nedhænges boksene i atriet fra hovedkonstruktionen i taget.
Beskrivelse:
Hovedsædet ligger centalt ved Langebro med udsigt over havnen til det nye friluftbad ved Islands Brygge.
Nykredits hovedkvarter er tænkt som en gennemsigtig kube, der giver klare visuelle forbindelser til Københavns Havn. Den ti etager høje glasstruktur, der er en af Københavns største kontorbygninger, omfatter et dramatisk atrium badet i dagslys, lys som føres videre til alle niveauer. På trods af bygningens store glasfacader er termisk belastning reduceret ved indtag af vand fra den nærliggende havn til afkøling af bygningen samt er den dobbelte facade udformet med sektioner, som kan åbnes for naturlig ventilation.
Kilde:SHL
