Bebyggelsen set fra den anden side af åen
Fotograf: Gitte Gylling Hammershøj Olesen
Download billede
Kig mod indgangsparti, to bygningsdele mødes
Fotograf: Gitte Gylling Hammershøj Olesen
Download billede
Beliggenhed ved vandet med trapper som indbyder til hvile
Fotograf: Gitte Gylling Hammershøj Olesen
Download billede
Forskellige volumener og materialer skaber en divers helhed
Fotograf: Gitte Gylling Hammershøj Olesen
Download billede
kig hen langs facaden mod Black Box Theatre
Fotograf: Gitte Gylling Hammershøj Olesen
Download billede
Kig over broen fra den anden side af Storåen
Fotograf: Gitte Gylling Hammershøj Olesen
Download billede
Bygningen anslutter til den anden side af Storåen via en dynamisk udformet bro
Fotograf: Gitte Gylling Hammershøj Olesen
Download billede
Beskrivelse:
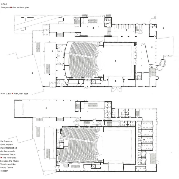
Oprindeligt opført som multihal, Holstebro-Hallen, i 1966. Huset blev første gang ombygget i 1990-91 af 3XNielsen. Bygningens program blev ændret til at fokusere på kongres- og scenevirksomhed, og huset omdøbtes til ’Musikteatret Holstebro’. I 2006 blev teatret genindviet efter en total renovering og modernisering foretaget af Kjær og Richter fra 2004-2006. Årligt besøger ca. 120.000 Musikteatret til flere end 200 arrangementer. På den sorte boks’ sydvendte facade ud mod Teaterpladsen – findes en stor LEDskærm på 90 m2.
Emneord:
Koncertsale | Koncertbygninger | Kongrescentre | Koncerthuse | Adresse:
Se på Google Maps
Se på Google Maps
