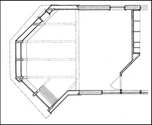
Musikstuens væltede form skyldes en kombination af hensynet til rummets akustik og muligheden for udsigt over Vaserne nedenfor.
Mod nord markerer tilbygningen sig som en trækonstruktion med et enkelt mindre vindue, der tilfører skala til den arkitektoniske komposition.
Fra to pianoer kan lærer og elev koncentrere sig om klaverspil med mulighed for indimellem også at nyde udsigten over Vaserne.
For at optimere musikstuens akustik er parallelle overflader bevidst undgået ligesom væggenes indvendige beklædning er den lyddøde Rocklit.
Musikstuens plan er mangekantet af akustiske grunde. I rummet er inddraget en del af husets oprindelige opholdsstue, mens tilbygningen står som en isoleret trækonstruktion.
Også i snit bryder musikstuens konstruktion med husets retvinklede former og flade tag.
Beskrivelse:
Som professionelle musikere har bygherreparret tilbygget et øvelokale som hjemmearbejdsplads på et ældre gasbetonhus.
Konstruktionen er laminerede limtræsbjælker, der hviler på en betonsokkel.
