Beskrivelse:
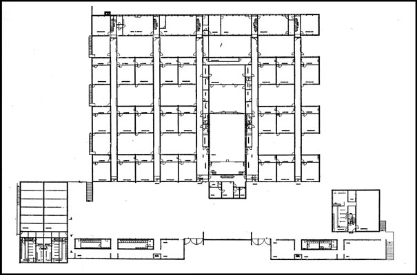
Munkegårdsskolen er en struktur af klasseværelser med tilhørende haverum der sideværts afskæres af korridorer eller forbindelsesgange.
Til hvert klasseværelse hører et afgrænset gårdrum der fra arkitektens hånd oprindelig også var beplantet forskelligt. Klasseværelsernes individuelle gårdrum giver mulighed for at trække undervisningen udendørs uden forstyrrelser fra skolens øvrige elever.
