Beskrivelse:
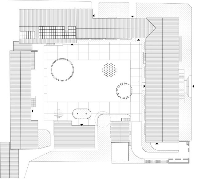
Gammel Hellerup Gymnasium har udvidet med en multihal under skolegården. Hallens tag er klædt i træ og fungerer som et landskab, og skaber derved et nyt samlingspunkt i skolegården. Bakkens kant er hævet godt en halv meter over gårdens nye betonbelægning og anvendes som et siddemøbel. Der er placeret specialdesignede bænke og stole på den nye byggede bakke, alle sammen i hvidt metal og med indlagt lys. Gården er afgrænset af skolens gule tegl bygninger fra 1960’erne, og det nye taglandskab er højt og stort nok til at dele gården op i flere rumligheder, som kun kan overskues hvis man bestiger bakken.
Sportshallen er overdækket af et karakteristisk loft af limtræ. Dette rejser sig på midten, sænker sig ude i siderne og afspejler derved det ydre taglandskab. Kunstlyset får loftets spær til at se ud, som om de fletter sig ind mellem hinanden. Væggene af beton er støbt in situ og væggene afsluttes i bløde kurver omkring hallens åbninger og fire hjørner. I dagtimerne kommer der lys ind siderne fra ovenlys, der er placeret i loftets kant. Hallens form er konstrueret ud fra, hvor stor loftshøjde det kræver, når to meter høj person kaster en bold fra den ene ende til den anden.
Emneord:
Beton | Gymnasier | Gymnastiksale | Pladser | Sportshaller | Skoler | Tagkonstruktioner | Trædæk | Betonarbejder | Idrætshaller |Se på Google Maps
