Fra første kælderniveau med indgang til stormagasinet fører eskalatorer videre ned til metrobanen.
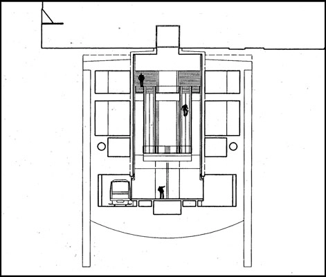
Fra forpladsen kan metropassagerer vælge mellem at tage trappen eller elevatoren ned til stationens tre underjordiske niveauer.
Under de store ovenlys starter eskalatorerne, der fører to niveauer ned til metrobanen.
For at aktivere lyskvaliteten fra ovenlysene med et mere dynamisk lysspil reflekterer et stativ med glasprismer det indkommende lys ned i stationsområdet.
Detalje af trappegelænder og lysarmatur fastmonteret i nedgangens side.
Eksempel på metroens minimalistiske ur-design.
Beskrivelse:
Til markering af Metrostationer er opsat cylindriske standere med logo og oversigt over metrobanens igangværende stationer.
Fra kælderetagen fører eskalatorer yderligere to niveauer ned i dybet til metroen.
For at udjævne overgangen i lysniveau over jorden med lyset i stationens underjordiske niveauer er opstillet fire ovenlyspyramider på pladsen foran Magasin.
