Beskrivelse:
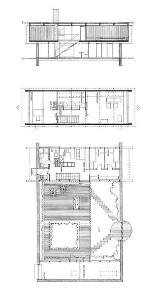
Knud Friis’ eget hus ligger i Aarhusforstaden Brabrand. Villaen er opført i 1958 som egen bolig og tegnestue for Knud Friis en af indehaverne af arkitektfirmaet Friis & Moltke: Friis og Moltke introducerede en tillempet udgave af brutalismen i Danmark i 1960’erne. Den såkaldte kasemat-arkitektur med store, robuste bygningslegemer karakteriseret af rå betonmure og synlige tekniske installationer. Villaen repræsenterer på meget fornem vis denne arkitektoniske retning. Huset er opført på en stor naturgrund i højtliggende terræn i Brabrand. Det er i to etager, og forener en storslået udsigt på den ene side med nærheden til en intim gårdhave med et mildt klima på den anden side. Hovedhus og anneks blev i 1970 dels udvidet, dels partielt ombygget af arkitekten selv, der frem til sin død i 2010 boede i huset sammen med sin hustru.
Emneord:
Boliger | Beton | Enfamiliehuse | Villaer | Brutalisme |Se på Google Maps
