Beskrivelse:
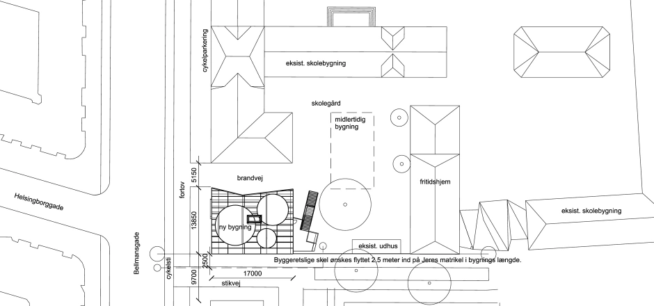
Kildevældskolen er en folkeskole med omkring 800 elever. Bygninger er primært opført i starten af det 20. århundrede, og har røde teglstensfacader og røde tegltage. Tilbygningen har facader i metalplader, og skiller sig tydeligt visuelt fra det eksisterende. Den rummer ca. 250 m2, og er opført i 2 etager, som en selvstændig bygning, der kobler sig på østsiden af hovedbygningen.
Emneord:
Tilbygninger | Skoler | Metalfacader | Metalplader | Metal | Adresse:
Se på Google Maps
Se på Google Maps
Links: Tegnestuens side om projektet |
