Beskrivelse:
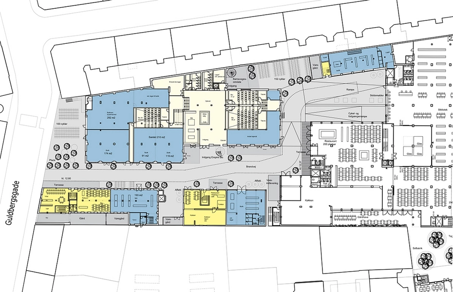
Området på indre Nørrebro mellem Meinungsgade, Guldbergsgade, Peter Fabers Gade og Nørrebrogade er belvet omdannet til studiecampus for KEA - Copenhagen School of Design and Technology. Stedet var tidligere lukket område med både større og mindre industrivirksomheder, men med de nye bygninger er området blevet åbnet op og fremstår som et levende knudepunkt i bydelen. På Campus Empire-området blev maskinfabrikken og jernstøberiet Smith, Mygind & Hüttemeier grundlagt i starten af 1870′erne. Empire Bio ligger i dag i en af de gamle haller. I begyndelsen af 1950’erne blev flere af dem erstattet af en stor bygning, der husede F.E. Bordings Trykkeri. Det er blandt andet denne fireetagers produktionsbygning, der er bygget om til det nye KEA campus. Ved at sænke gadeplanet på begge sider af hovedbygningen etableres en offentlig passage for fodgængere midt igennem campus og derved opstår to nye byrum, ’Gården’ og ’Studiepladsen’. På denne måde skabes en kobling mellem Nørrebrogade og Guldbergsgade.
Emneord:
Transformation | Ombygninger | Skoler | Uddannelsesbygninger |Se på Google Maps
