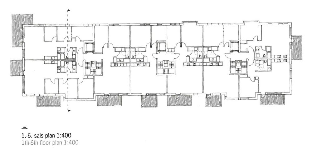
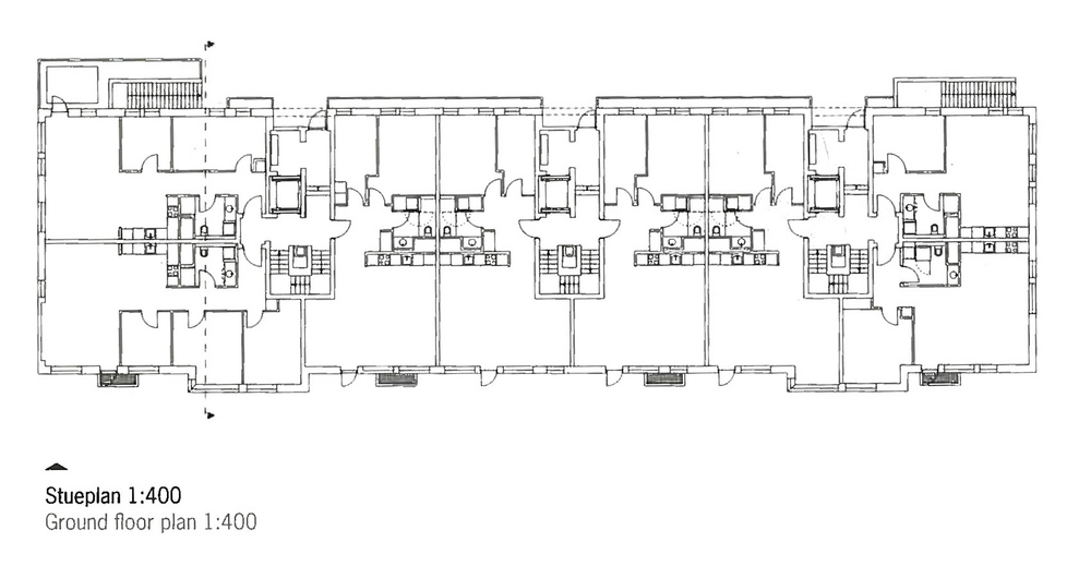
Beskrivelse:
Boligbyggeriet ligger i den nye bydel Havnestaden, et 200.000 m2 byområde ved Islandsbrygge, som er planlagt med fokus på at udvikle havnekajen som et alment tilgængeligt rekreativt område. Bygningens volumen er en fritstående bygningskrop, lignende områdets tidligere silobygninger, og trækker tråde tilbage til områdets industrielle arv. Inspirationen til formgivning af huset er hentet fra 1930’ernes funktionalisme. De hvidpudsede facader får modspil af balkoner i tombak med brystning i hvide metallameller. Byggeriet indeholde 62 boliger fordelt på 8 etager og ca. 6000 m2. Lejlighederne varierer i størrelse mellem 62 og 158 m2.
Emneord:
Boligbebyggelser | Altaner | Boliger | Havnefronter | Balkoner | Pudsede facader | Penthouses | Havnebygninger | Boligbyggerier | Tombak | Adresse:
Se på Google Maps
Se på Google Maps
